Mögliche Interaktionen




Exposé Gewerbeimmobilie
Chiffresys_95926
BezeichnungBüro-/Praxisflächen
AdresseDorfstraße, 47661 Issum
Entwürfe Bilder.PNG
Detail-AnsichtDetail-Ansicht
© OpenStreetMap contributors
Überblick
ObjektartBüro und Praxis
Nutzfläche160,0 m²
Details und Ausstattung
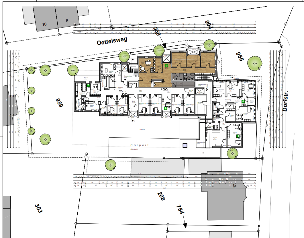
NutzungsmöglichkeitenIm Erdgeschoss ist eine große Zahnarztpraxis geplant. Darüber im Obergeschoss wird eine Hausarztpraxis einziehen.
Ebenso werden dort ein Physiotherapeut, eine Logopädin und ein Ergotherapeut ihre Praxisräume einnehmen.

Auf der gleichen Etage ist noch eine weitere Praxisfläche (ca. 160 qm) zu beziehen, z. B. für einen Psychologen, Facharzt oder Therapeuten.
Baujahr2022
Nutzfläche160,0 m²
Anzahl Stellplätze27
Lageplan oder Grundriss
Lage und Verkehrsanbindung
OrtIssum, Kreis Kleve
StadtteilSevelen
LagebeschreibungIn Issum-Sevelen wird ein Objekt geplant, welches Wohnfläche, Praxisfläche und Ladenfläche zur Verfügung stellen soll.


Anbieter
Heinz-Friedrich Voortmann
Tel: 0162-9923330
Weitere Bilder