Mögliche Interaktionen




Exposé Gewerbeimmobilie
Chiffresys_95687
BezeichnungVermietung von Büro- und Lagergebäude mit gr0ßzügiger Außenlagerfläche in Kleve
AdresseHuissener Straße 5, 47533 Kleve
Unbenannt.PNG
Detail-AnsichtDetail-Ansicht
© OpenStreetMap contributors
Überblick
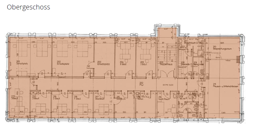
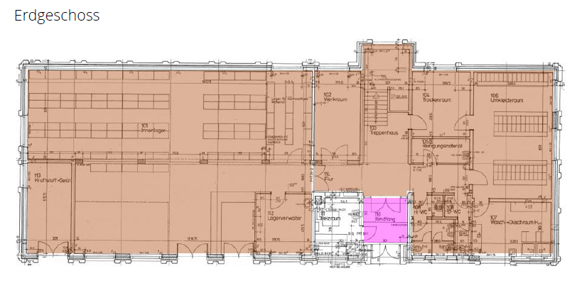
ObjektartIndustrie: Lager, Hallen und Produktion
Nutzfläche787,0 m²
VermarktungsartMiete
Kaltmiete (pro m² monatlich)9,91 €
Details und Ausstattung
Baujahr1988
Grundstücksfläche3.601,0 m²
Nutzfläche787,0 m²
Anzahl Stellplätze46 inkl. 1 Carpoort
Kaltmiete (gesamt monatlich)7.800,00 €
Kaltmiete (pro m² monatlich)9,91 €
Nebenkosten (gesamt monatlich)950,00 €
Lage und Verkehrsanbindung
OrtKleve, Kreis Kleve
LagebeschreibungMakrolage:
Die Kreisstadt Kleve mit aktuell rd. 49.000 Einwohnern befindet sich im Westen Nordrhein-Westfalens an der deutsch-niederländischen Grenze und gehört dem Regierungsbezirk Düsseldorf an. Kleve gilt als attraktiver Einzelhandels- und Dienstleistungsstandort und verfügt daher über ein Einzugsgebiet, das sich über die Grenzen des Kreises Kleve hin bis in die Niederlande erstreckt. Die Landeshauptstadt Düsseldorf sowie die niederländische Stadt Utrecht sind in nur 60 Minuten zu erreichen. Die niederländische Metropolen Rotterdam und Amsterdam sind aufgrund der guten Anbindung an das Straßennetz in lediglich 80 Minuten zu erreichen (ca.120km)

Mikrolage:
Das Objektliegt rd.2,5km südwestlich der Klever Innenstadt im Stadt teil Materborn innerhalb eines kleinen Gewerbegebiets. Das Grundstück befindet sich auf der nördlichen Seite der Huissener Straße. Die direkte Nachbarschaft ist durch Gewerbe Immobilien (Lebensmitteldiscounter, Getränkehandel und kleine Logistikdienste) geprägt. Das Umfeld südlich und südöstlich der Huissener Straße wird als Wohngebiet genutzt.
Über die B9 undB220 ist die Stadt an die Autobahnen A3 (Emmerich–Passau) undA57 (Nimwegen–Köln) angeschlossen. Die nächste Autobahnauffahrt zur A57 befindet sich ca.14km entfernt. Zu dem besteht über die fußläufig zu erreichende Bushaltestelle Anschluss an den Bahnhof Kleve. Von dort aus verkehren Regionalbahnen in Richtung Krefeld und Düsseldorf.

Entfernung zu:
Autobahn14 km
Bahn7 km
Flughafen90 km
Anbieter
Gebr. Siebers Unternehmensgruppe
Kapellenhofstraße 100
47574 Goch
Tel: +49 2827 302010
immobilien@siebers-gruppe.de
Weitere Bilder