Mögliche Interaktionen




Exposé Gewerbeimmobilie
Chiffresys_140479
BezeichnungKaufangebot ehemaliges Bürogebäude in Kleve
AdresseHoffmannallee 91, 47533 Kleve
Hausansicht.png
Detail-AnsichtDetail-Ansicht
© OpenStreetMap contributors
Überblick
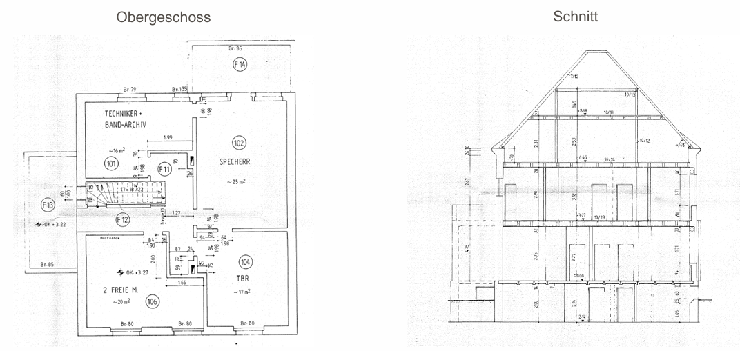
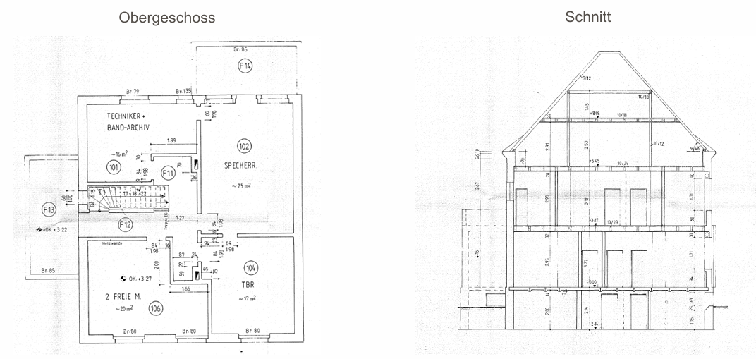
ObjektartBüro und Praxis
Nutzfläche361,39 m²
VermarktungsartKauf
Kaufpreis (gesamt)650.000,00 €
Objektbeschreibung
Das repräsentative Haus wurde ca. 1926 als repräsentatives Wohnhaus
mit 2 Vollgeschossen sowie Dachgeschoss errichtet und ist voll
unterkellert. Das Grundstück mit Süd-Ost-Ausrichtung entfaltet
insbesondere im rückwärtigen, parkähnlich angelegten Bereich einen
besonderen Charme und ist direkt vom Keller über eine Gartentür
zugänglich.
Seit ca. 1989 wird das Haus vom jetzigen Eigentümer als Büro genutzt
und bietet aufgrund seiner Grundrissgestaltung vielfältige Nutzungsarten
an: So ist eine fortgeführte Nutzung als Büro oder Praxis durch
großzügige Empfangsbereiche im Erdgeschoss möglich. Alternativ ist
auch eine Kombination mit einer Wohnungsnutzung in den
Obergeschossen denkbar.
Ebenso ist eine vollumfängliche Nutzung als großzügiges Wohnhaus
denkbar. Hierbei können vielfältige individuelle Konzepte unter
Einbeziehung der wunderbaren Grundstückssituation realisiert werden.
Die Liegenschaft ist nicht vermietet. Sie wird noch geräumt und ohne
Einrichtungsgegenstände an den neuen Eigentümer übergeben
Details und Ausstattung
Baujahr 1925/1926
Grundstücksfläche1.403,0 m²
Nutzfläche361,39 m²
Anzahl Geschosse3
Anzahl Stellplätze5
HeizungsartVaillant ecoVITVKK366/2
Kaufpreis (gesamt)650.000,00 €
Kaufpreis (pro m²)1.798,61 €
ProvisionJa
Sonstige AngabenModernisierung weitestgehend aus Zeit Bezug durch Eigentümer,
Ende 1980er
Lage und Verkehrsanbindung
OrtKleve, Kreis Kleve

Entfernung zu:
Autobahn24 km
Bahn1,7 km
Flughafen28 km
Hafen9 km
Anbieter
WfG Kreis Kleve 4c .jpgWirtschaftsförderung Kreis Kleve GmbH
Brigitte Jansen
Hoffmannallee 55
47533 Kleve
Tel: +49 2821 7281-0
Fax: +49 2821 7281-30
info@wfg-kreis-kleve.de
Weitere Bilder