Mögliche Interaktionen




Exposé Gewerbeimmobilie
Chiffresys_102669
BezeichnungLadenlokal in gut frequentierter Lage (Ecke Fußgängerzone)
AdresseKorbmacherstraße 1, 46483 Wesel
20240914_134909.jpg - XnView MP 2024-09-17 10-10-44.jpeg
Detail-AnsichtDetail-Ansicht
© OpenStreetMap contributors
Überblick
ObjektartEinzelhandel/ Ladenlokal
Nutzfläche88,0 m²
VermarktungsartMiete
Verfügbarkeit01.06.2025
Objektbeschreibung
Das Lokal wurde im Jahr 2021 kernsaniert. Der Verkaufsraum (62 m²) ist hell und freundlich. Im Keller (26 m²) befindet sich ein Lager, sowie eine neue WC-Anlage, Teeküche, Lager.
In Absprache mit dem bisherigen Mieter kann das Lokal auch früher gemietet werden.
Details und Ausstattung
Nutzfläche88,0 m²
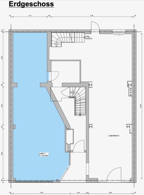
Lageplan oder Grundriss
Lage und Verkehrsanbindung
OrtWesel, Kreis Wesel
LageInnenstadtlage

Informationen zu Wesel
Die Kreisstadt Wesel liegt inmitten der idyllischen Kulturlandschaft Niederrhein und vereint sowohl urbane als auch ländliche Strukturen zu einer besonderen Standort- und Lebensqualität. Geprägt durch die Lage direkt an Rhein und Lippe, einem reichhaltigen Kulturangebot sowie vielseitigen Shoppingmöglichkeiten ist Wesel ein attraktiver Ausflugs- und Anziehungspunkt in der Region.

Mit ihren rund 63.000 Einwohnern liegt die Stadt an Rhein und Lippe nahe des Ballungsraums Ruhrgebiet. Als Mittelzentrum für rund 180.000 Menschen verfügt Wesel über eine hervorragende Infrastruktur. Die verkehrsgünstige Lage Wesels zeichnet sich durch die direkten Verbindungen zu den Autobahnen 3 und 57 sowie den Bundesstraßen 8 und 58 aus. Wesel verfügt über einen Bahnhof und ist somit für den Personen- wie auch Güterverkehr optimal zu erreichen. Zudem liegen die Flughäfen Düsseldorf und Weeze weniger als eine Stunde entfernt.

Der Rhein als eine der wichtigsten Handelsstraßen für Massengüter liegt direkt vor der Haustür Wesels. Mit der neu gegründeten Hafen-Gesellschaft DeltaPort, zu der der Weseler Stadthafen, der Rhein-Lippe-Hafen sowie der Hafen Emmelsum gehören, strebt die Region einen Platz im weltweit wachsenden Logistikmarkt an.

Anbieter
Stadt-Wesel_Logo.pngStadt Wesel
Ingo Balters
Klever-Tor-Platz 1
46483 Wesel
Tel: 0281 203-2715
Fax: 0281 203 49120
ingo.balters@wesel.de
Weitere Bilder